·應用領域:
■通信系統;
■金融系統;
■工業自動化系統;
■互聯網數據中心(IDC);
■多媒體數據中心(MDC);
■其他重要負載系統。
·方案特點:
■具有高可用性:雙總線(N+1)系統能完善地解決單機UPS系統的可維護性問題;
■具有高可靠性:降低了供電系統輸入、輸出部分發生故障的可能性,為關鍵負載提供可靠電源保護;
■具有高容錯功能:沒有“瓶頸故障”點,即在整個UPS供電系統中,在任何節點均不存在瓶頸故障隱患;
■具有高抗干擾性:保證無論來自市電或UPS供電本身的“電源干擾”盡可能地被消除,包括傳導干擾與輻射干擾。
·雙總線(N+1)方案概述:
互聯網數據中心(IDC)和多媒體數據中心(MDC)是高速互聯網的調控中心。用戶對它們所承擔的對信息資源(數據、語音和圖像信息)的遠程處理、存儲和轉送的“時效性”要求較高。哪怕是僅幾秒鐘的“停機”均會給整個互聯網的安全運行和用戶的生產經營帶來無法估量的損失。嚴重時,甚至會造成社會和經濟生活的嚴重癱瘓。因此,IDC必須向用戶提供365×24h連續不斷的高速、安全和可靠的信息資源增值服務。為達此目的,從設計原則上講,承擔著向IDC機房供電任務的整個電源系統都必須采用具有高度“容錯”功能的冗余式的供電方案,以確保無論是在市電電網出故障時或是在某臺“雙變換、在線式UPS電源”的逆變器發生故障時,還是在進行日常維護/檢修操作時或因故致使保險絲燒毀/斷路器開關“跳閘”時,互聯設備均應由“在線式UPS”的逆變器電源來供電,而不應進入由普通的市電電源/應急備用發電機組經UPS的交流旁路來供電的狀態。這是因為只有“在線式UPS”的逆變器電源才有可能向用戶的負載提供同時具有穩壓、無頻率“突變”,無干擾和波形失真度較小的高質量正弦波電源。對于包括后備式UPS,在線互動式UPS在內的“非在線式UPS”來說,它們主要對輸入電源的電壓進行調整,對輸入電壓的頻率波動,各種電源干擾和電壓失真度并無“實質性”的改善。這就意味著,在整個供電系統中,不應存在單點“瓶頸”故障隱患。為此,應盡可能地配置具有高度“容錯”功能的UPS冗余供電系統。也就是說,在這種UPS供電系統的運行中,即使遇到某些“部件”偶然發生“故障”時,整個UPS供電系統必須仍能正常工作。
根據當今UPS產業的技術發展水平,以選用具有“雙總線輸入”和“雙總線輸出”供電功能的UPS冗余供電系統為宜。它是由如下幾部分供電系統所構成的:
1)雙總線輸入供電系統
雙總線輸入供電系統基本配置為:由市電輸入電源+備用發電機組+“自動切換”控制柜+輸入配電柜。自動切換控制系統時刻監視著各種輸入電源的實時運行狀態,并確保總是將其中可靠的一路電源送到UPS的輸入端。對于某些重要的IDC機房而言,其“應急發電機”電源實際上是一套由多臺柴油發電機+發電機并機控制柜所組成的冗余式發電機供電系統。為確保后接的“N+1”型UPS冗余供電系統能絕對安全可靠地運行,必須高度重視位于上述冗余輸入電源供電系統中的各種設備之間的“技術兼容性”和“切換參數”的正確設置。
2)雙總線輸出配電系統
為了消除可能出現在UPS并機系統輸出端與用戶端之間的“單點瓶頸”故障隱患,有必要配置UPS的雙總線輸出配電系統。其基本配置是由“N+1”型UPS冗余供電系統(優選“1+1”或“2+1”型并機供電方案)+輸出配電柜+負載自動切換開關(STS)所組成的UPS輸出供電系統。對于某些要求較高的場所,還應配置由負載同步控制器(LBS)+兩套“N+1”型UPS冗余供電系統所組成的具有較高“容錯”功能的供電系統。鑒于目前在IDC機房中所用的服務器和磁盤陣列機等產品中有(30~50)%為采用“雙電源輸入供電”體制的產品,對于這些設備,可以直接將分別來自兩套“N+1”型并機系統的電源連接到這種“雙電源輸入設備”的兩個輸入端上。對于采用“單電源輸入供電”方式的關鍵負載,則是將分別來自兩套“N+1”型并機系統的電源首先連接到“負載自動切換開關”(常見的是STS型的靜態開關和SS型的快速切換開關)的兩個輸入端上,然后再將用戶的關鍵設備連接到“負載自動切換開關”的輸出端上。
·雙總線N+1系統高可靠性分析
要想讓互聯網數據中心具有365×24h的“全天候”運行特性,對于向它提供電源的UPS產品的可靠性的要求是非常苛刻的。這是因為對于可靠性僅達99.999%的UPS產品來說,它在一年中可能造成的互聯網的停機時間長達316s,即使將UPS產品的可靠性提高到99.999999%,在一年中可能造成的停機時間仍有320ms之長。對于IDC機房而言,如果真的發生長達320ms的停機故障,它會帶來很大的損失。這是因為當前多數計算機所允許的瞬間供電中斷時間為10~18ms。否則,就會造成用戶的網控操作系統或運行軟件遭到破壞。因此,要想讓IDC機房真正具備能提供365×24h的連續不間斷的運行特性,絕不是當今的UPS產業可提供的UPS單機所能達到的。迄今為止,我們只能制造出故障率越來越低的UPS產品。然而,還制造不出“故障率為零”的UPS產品。在當今的技術條件下,采用“N+1”型UPS冗余并機供電系統是消除單點“瓶頸”故障的較佳供電方案。它是在確保各臺UPS單機的逆變器輸出電壓處于同幅度、同頻率和同相位的條件下(出現在各種UPS單機之間的“環流”等于零),將“N+1”臺具有相同輸出功率的UPS單機置于并聯輸出狀態來運行的供電系統。
為使UPS并機供電系統具有必要的“容錯”功能,要求用戶的最大負載量不應超過N臺UPS單機的總輸出功率。當UPS并機系統正常工作時,由“N+1”臺UPS單機來平均分擔負載電流。當某臺UPS出故障時,發生故障的那臺UPS通過執行“選擇性跳閘”操作而自動脫機,此時由剩下的N臺UPS繼續為用戶提供高質量的逆變器電源。
隨著位于UPS冗余系統中的UPS單機數量的增加,它不但會造成整套UPS冗余并機供電系統的可靠性逐漸地下降,而且還會導致整套UPS冗余并機系統的“輸出功率的余量”也逐漸地減小(這意味著UPS并機系統的抗輸出過載能力也在逐漸地降低)。因此,從應用技術的角度看,用戶應盡量地選用高可靠的“1+1”型或“2+1”型UPS冗余供電系統。
·選配同IDC的集中監控系統“兼容性”好的UPS冗余供電系統
為了滿足信息網絡對IDC和MDC機房實現無人或少人值守管理和遠程集中監控的需求,從而提高對UPS供電系統的“可管理性”,對互聯網數據中心來說,除本身應配置對它的所有IT設備進行實時監控的網絡管理系統之外,還應建立一套對“非IT設備”的集中監控體系,以便對諸如空調機、配電柜、電池組、發電機組、漏水警報、安全系統和消防系統等設備的運行情況進行實時的監控和分析。為此,要求所選用的UPS冗余供電系統應配置有如下通信接口:
1)在UPS上配置RS232/RS485接口,Modem或SNMP適配器;
2)用于顯示UPS的工作狀態/報警信息的“繼電器干接點”型的輸出通信接口;
3)“用戶自定義”輸入信號(門禁、煙霧、溫度、濕度等報警信號)的“繼電器干接點”型的輸入通信接口;
4)對各種“非IT設備”配置必要的數據采集器;
5)配置相應的集中監控和管理軟件包或通信協議。
利用上述的輸入/輸出通信接口和相應的電源管理軟件或用戶現有的網管集中監控系統就可以組成所謂的智能化IDC和MDC機房的集中監控系統。在這樣的網管系統中,可實現的主要調控功能有:
1)調閱在UPS的LED/LCD顯示屏上所能觀察到的UPS的實時運行參數(例如:輸入/輸出電壓、電流、頻率、有功功率/視在功率、功率因數及電池組的充放電電壓/電流等參數);
2)“互聯網數據中心”所用的各種“機房環境調控設備”的“運行大事記”(自各種設備開機以來,按時序排列的,曾出現過的故障/報警/用戶所執行過的操作等信息);
3)萬一發生故障時,執行網絡廣播報警(彈出報警窗口),電話或手機的自動撥號、自動傳呼或發E-Mail等操作,以便通知值班人員及時到現場排除故障或維修;
4)對UPS的備用電池組執行可編程的電池容量“自測試”操作,如果發現電池的“實有容量(Ah)”偏低時,還應自動發出“電池需要更換”的預報警信號;
5)將“用戶的自定義”報警信號(例如:溫度/濕度、門禁、消防等報警信號)經UPS的輸入通信接口被納入IDC機房或智能化樓宇的統一的集中監控系統;
6)由IDC和MDC的主管當局所指定的人員,根據不同的授權權限,分級“重新調整”/設置各種相應設備的運行參數或執行遠程的故障分析/診斷操作。
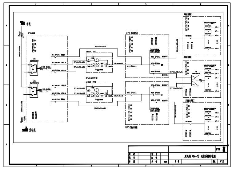
·雙總線(N+1)方案圖:
運行示意圖:
供電原理圖:





Copyright ? 2003 - 2023 . All Rights Reserved